大和市西鶴間2丁目 新築戸建
新築戸建
鶴間駅
4,480万円
- 建物面積
- 75.14㎡
- 土地面積
- 108.34㎡
- 所在地
- 大和市鶴間2丁目
- アクセス
- 小田急江ノ島線鶴間駅より 徒歩12分
担当者のつぶやき
小田急江ノ島線「鶴間」駅まで徒歩12分!駅までフラットな道のりです。
新築分譲住宅全2棟
【1号棟】4,480万円
【2号棟】5,380万円
土地面積:108.34㎡~123.89㎡
建物面積:75.14㎡~99.77㎡
駐車スペース2台可能!充実した設備・仕様です。
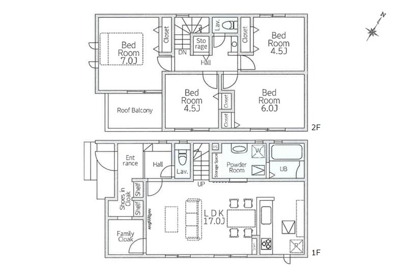
間取り/区画図
区画図
この物件のお問い合わせ
ローンシミュレーション
※返済年数35年、金利0.196% (変動金利) で算出しています。
※借入については金融機関の所定の審査があり、審査の結果によりご利用できない場合があります。
※金利は優遇金利適用の場合です。
※購入の際には別途諸費用が必要となります。 詳しくはスタッフまでお問い合わせ下さい。
物件詳細情報
| 種別 |
新築戸建 |
価格 |
4,480万円 |
| 所在地 |
神奈川県大和市鶴間2丁目 |
アクセス |
小田急江ノ島線鶴間駅より 徒歩12分 |
| 築年月 |
|
新築/中古 |
新築 |
| 建物面積 |
75.14㎡ |
計測方式 |
壁芯 |
| バルコニー |
|
向き |
|
| 建物構造 |
木造 |
建物階数 |
地上2階 |
| 間取内容 |
洋室4.5畳 / S4.7畳 / LDK14.1畳 / 洋室5.2畳 |
| 駐車場 |
有 |
| 引渡/入居時期 |
2026年03月 |
現況 |
未完成 |
| 地目 |
宅地 |
用途地域 |
第一種低層住居専用 |
| 都市計画 |
市街化区域 |
地勢 |
平坦 |
| 土地面積 |
108.34㎡ |
土地面積計測方式 |
実測 |
| 建ぺい率 |
50% |
容積率 |
100% |
| 土地権利 |
所有権 |
接道状況 |
一方 |
| 接道方向1 |
西 |
接道間口1 |
2.8m |
| 接道種別1 |
公道 |
接道幅員1 |
4.0m |
| 接道方向2 |
|
接道間口2 |
|
| 接道種別2 |
|
接道幅員2 |
|
| 設備・条件 |
住宅性能保証付 食器洗い乾燥機 都市ガス 公営水道 排水下水 駐車場有 バルコニー |
| 取引態様 |
仲介 |
お問い合せ番号 |
S3818 |
この物件のお問い合わせ
この物件を見た人は
他にこんな物件を見ています