横浜市旭区川井本町 新築戸建
新築戸建
中山駅
4,290万円
- 建物面積
- 109.30㎡
- 土地面積
- 171.22㎡
- 所在地
- 横浜市旭区川井本町
- アクセス
- JR横浜線中山駅よりバス14分 停歩4分
担当者のつぶやき
閑静な住宅地内に誕生する新築分譲住宅全2棟です。
【1号棟】4,290万円
【2号棟】4,290万円
土地面積:171.22㎡~178.52㎡
建物面積:109.30㎡
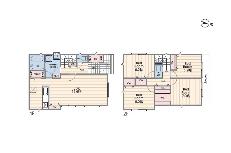
LDKは19帖超え!水回りが集中した家事効率のいい間取りです。シューズクローク、ウォークインクローゼットなど収納スペースが豊富。駐車スペースは並列で2台可能です。
間取り/区画図
区画図
この物件のお問い合わせ
ローンシミュレーション
※返済年数35年、金利0.196% (変動金利) で算出しています。
※借入については金融機関の所定の審査があり、審査の結果によりご利用できない場合があります。
※金利は優遇金利適用の場合です。
※購入の際には別途諸費用が必要となります。 詳しくはスタッフまでお問い合わせ下さい。
物件詳細情報
| 種別 |
新築戸建 |
価格 |
4,290万円 |
| 所在地 |
神奈川県横浜市旭区川井本町 |
アクセス |
JR横浜線中山駅よりバス14分 停歩4分 |
| 築年月 |
|
新築/中古 |
新築 |
| 建物面積 |
109.30㎡ |
計測方式 |
壁芯 |
| バルコニー |
|
向き |
|
| 建物構造 |
木造 |
建物階数 |
地上2階 |
| 間取内容 |
1階 LDK19.6畳 / 2階 洋室7畳 / 2階 洋室6畳 2部屋 / 2階 洋室5.2畳 |
| 駐車場 |
有 |
| 引渡/入居時期 |
2025年12月 |
現況 |
未完成 |
| 地目 |
宅地 |
用途地域 |
準工業 |
| 都市計画 |
市街化区域 |
地勢 |
|
| 土地面積 |
171.22㎡ |
土地面積計測方式 |
|
| 建ぺい率 |
60% |
容積率 |
200% |
| 土地権利 |
所有権 |
接道状況 |
一方 |
| 接道方向1 |
南西 |
接道間口1 |
3.6m |
| 接道種別1 |
公道 |
接道幅員1 |
4.0m |
| 接道方向2 |
|
接道間口2 |
|
| 接道種別2 |
|
接道幅員2 |
|
| 小学校 |
川井小学校
|
中学校 |
都岡中学校
|
| 設備・条件 |
カウンターキッチン 食器洗い乾燥機 浴室乾燥機 温水洗浄便座 床下収納 W.INクローゼット TVドアホン 都市ガス 公営水道 排水下水 駐車場有 バルコニー |
| 取引態様 |
仲介 |
お問い合せ番号 |
S3810 |
この物件のお問い合わせ
この物件を見た人は
他にこんな物件を見ています