
| 物件価格 | 頭金 | 毎月の返済額 |
|---|---|---|
| 2,180万円 | 万円 | 円/月 |
※返済年数35年、金利0.196% (変動金利) で算出しています。
※借入については金融機関の所定の審査があり、審査の結果によりご利用できない場合があります。
※金利は優遇金利適用の場合です。
※購入の際には別途諸費用が必要となります。 詳しくはスタッフまでお問い合わせ下さい。
| 種別 | 中古マンション | 価格 | 2,180万円値下げ |
|---|---|---|---|
| 管理費 | 8,550円 | 修繕積立金 | 13,650円 |
| 所在地 | 神奈川県横浜市旭区若葉台2丁目 | アクセス | JR横浜線十日市場駅よりバス15分 停歩4分 東急田園都市線「青葉台」駅バス26分停歩4分 |
| 築年月 | 1982年7月 | 新築/中古 | 中古 |
| 専有面積 | 71.82㎡ | 計測方式 | |
| バルコニー | 5.92㎡ | 向き | 南西 |
| 建物階数 | 地上14階 | 部屋階数 | 7階 |
| 建物構造 | SRC | ||
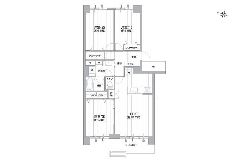
| 間取内容 | LDK13.7畳 / 洋室6.4畳 / 洋室5.5畳 / 洋室6.8畳 | ||
| 駐車場 | 空有 | ||
| 引渡/入居時期 | 即時 | 現況 | 空室 |
| 地目 | 用途地域 | 第一種中高層住居専用 | |
| 都市計画 | 市街化区域 | 地勢 | |
| 土地面積 | 土地面積計測方式 | ||
| 建ぺい率 | 容積率 | ||
| 土地権利 | 所有権 | 接道状況 | |
| 小学校 | 若葉台小学校 | 中学校 | 若葉台中学校 |
| 設備・条件 | 食器洗い乾燥機 浴室乾燥機 温水洗浄便座 トランクルーム TVドアホン エレベータ 駐車場有 | ||
| 取引態様 | 仲介 | お問い合せ番号 | M2100 |